Leave a Message

Thank you for your message. We will be in touch with you shortly.

Explore Our Properties

There is no property location added.

There is no property location added.

Property Description

LUXURY VILLA WITH STUNNING SEA VIEW IN PUNTA ALA

The villa for sale in Punta Ala is one of the most interesting from an architectural point of view. Designed by the well-known architect Walter Di Salvo in 1962, it has been totally renovated with works completed in 2023.

The 750-square-metre villa is on two levels and divided into two independent apartments, allowing the property to be lived in with relatives and friends in extreme privacy and confidentiality. The two flats have separate entrances from the garden, but are also connected by an internal staircase.

 

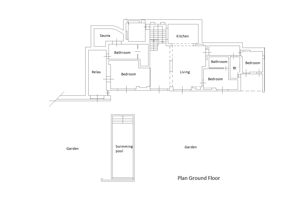
UPPER FLOOR

The main apartment occupies the upper floor of the villa, and is characterised by the large living room with central fireplace and large windows overlooking the sea and the infinity pool. Porches and relaxation areas make it possible to experience the garden "facing" the sea, enjoying the splendid sunsets that this part of the Maremma can offer. 

On the same level is the kitchen with exit to the back of the garden, 3 double bedrooms each with private bathroom, a small study and a relaxation room with fireplace and sea view; the master bedroom has a double bathroom, living room and walk-in wardrobe. 

From the pool area, a beautiful spiral staircase leads to the solarium terrace overlooking Punta Ala.

 

LOWER FLOOR

The apartment on the lower floor features a central living room with an open American-style kitchen, large windows connecting the interior of the house with the garden and the second sea-view swimming pool.

There are 2 double bedrooms, both with en-suite bathrooms, as well as a master bedroom with living room, en-suite bathroom and cave with sauna and relaxation area. 

In total there are 7 bedrooms in the villa with 8 en-suite bathrooms and a guest bathroom.

On the lower floor there is also a small independent flat with living area and kitchen wall, master bedroom and bathroom.

The neutral colours of the bathrooms and walls and the furnishings, used in the recent renovation, combined with the modern structure, make the villa a property of great character, elegance and refinement where one can spend a pleasant moment surrounded by nature

 

PUNTA ALA

Those who know Punta Ala cannot help but love it. A sophisticated tourist destination, Punta Ala stands on a strip of land washed by the sea on three sides.  Dominated by luxuriant nature that alternates between deep green of the pine forest with the blue of the sea and sky. In the wide gulf of fine sand and washed by a crystal-clear sea, there are elegant bathing establishments and restaurants offering all kinds of services.  

There are many beaches and coves to visit nearby, Cala Violina, Cala Civette, and Cala Martina, which can be reached either by sea or by pleasant walks.

Punta Ala is not only sea, but an undisputed destination for lovers of golf, tennis, polo and sailing. The islands of the Tuscan archipelago, first and foremost the island of Elba, are easily reached from the marina, one of the most important in the area.

 

WHY THIS VILLA

  • Stunning sea view
  • Projected by an famous italian architect
  • Close to the beacg and the marina
  • Latge size
  • Excellent renovation

 

PROPERTY

  • Villa about 750 smq
  • 2 swimming pool
  • 2 Living room
  • 2 kitchen
  • 7 bedrooms
  • 9 bathrooms

 

 

Overview

Property Status
For Sale

Features & Amenities

Downloads

Sea View Luxury Villa in Punta Ala

Schedule a Tour

We would love to help you see this beautiful home! As a full-service brokerage, we can help you tour. Please submit an offer, and answer questions about the buying process.

Enter a valid email

Thank you

for your interest in Sea View Luxury Villa in Punta Ala, Italy

back to page

I'm Interested In

Sea View Luxury Villa in Punta Ala

or
  • CallHarm Meyer

    License #SL3369018

    (360) 473-9412
  •